Baugebiet Hölzle-Hungerrain
Freie Bauplätze im Neubaugebiet „Hölzle-Hungerrain“
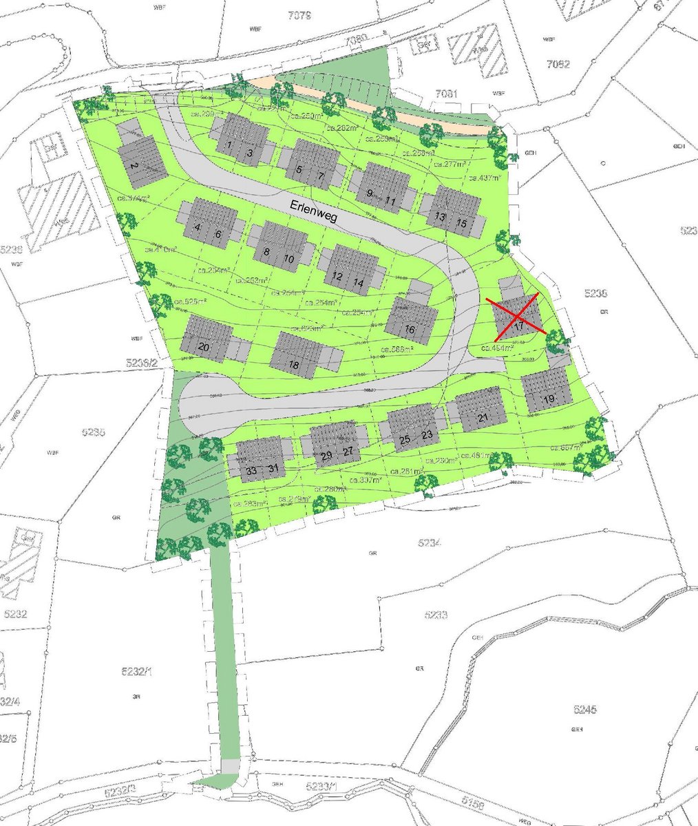
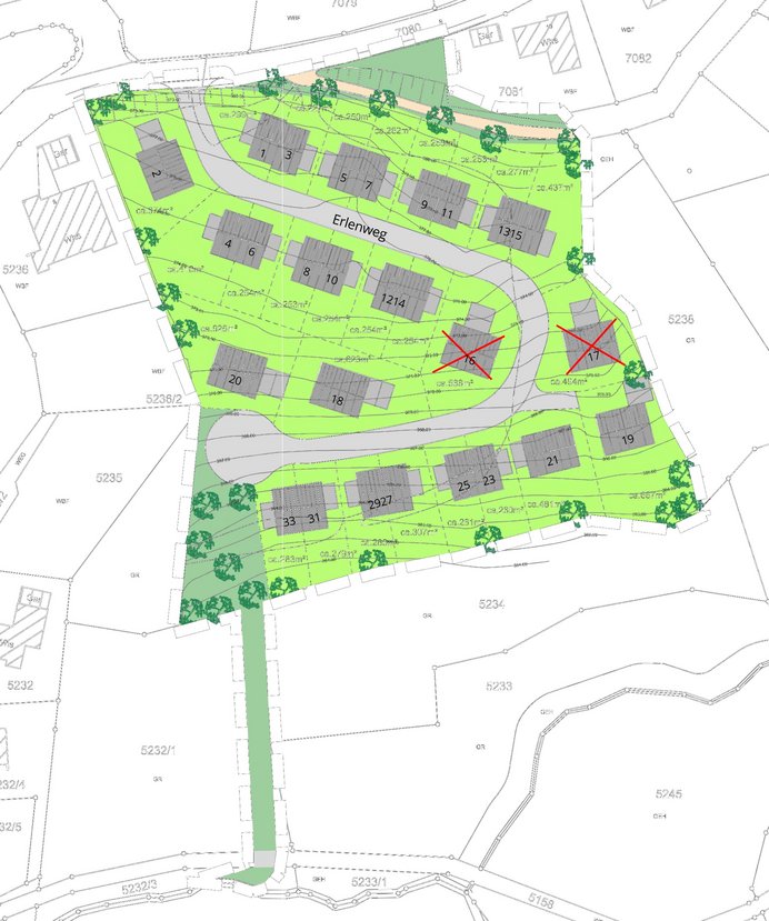
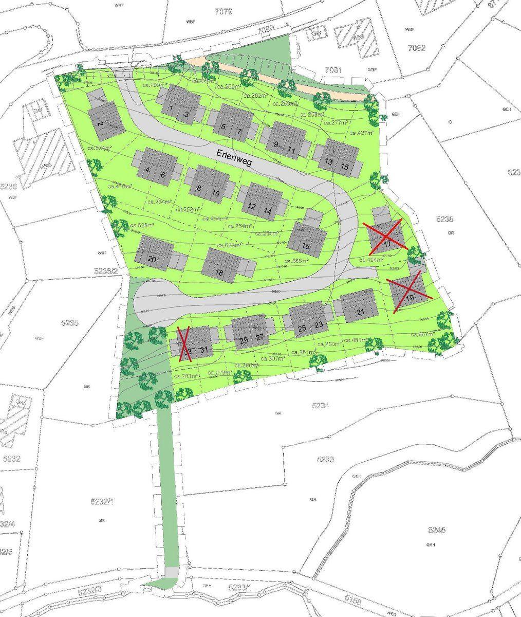
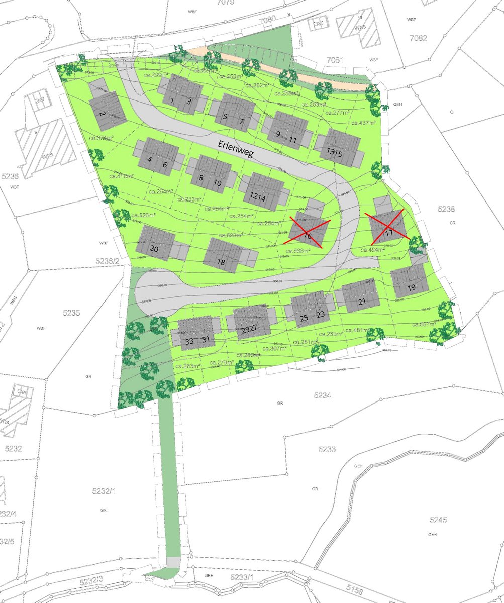
Sie wollen den Traum vom Eigenheim wahr werden lassen? Wir bieten in unserem Neubaugebiet „Hölzle-Hungerrain“ die Bauplätze Erlenweg 1 - 16 sowie 18 – 33 zur Realisierung Ihres Bauvorhabens an. Dies sind 5 Einzelhaus-Bauplätze sowie 20 Bauplätze für Doppelhaushälften. Die Grundstücksgrößen der Einzelhäuser betragen zwischen 623 m² und 674 m². Die Grundstücke der Doppelhaushälften haben eine Größe zwischen 227 m² und 433 m². Der Kaufpreis beträgt 370 €/m².
Notwendige Voraussetzung für die Berücksichtigung der Bewerbung ist die Vorlage einer Finanzierungsbestätigung der Bank. Auf der Homepage der Stadt www.wehr.de finden Sie das Bewerbungsformular, den Lageplan mit den zur Auswahl stehenden Bauplätzen sowie den Bebauungsplan mit dem zeichnerischen und dem schriftlichen Teil.
Bei Fragen wenden Sie sich jederzeit gerne an das Grundstücksmanagement der Stadt, Frau Muñoz Gerteis, Mail: Sabrina.Munoz-Gerteis(@)wehr.de, Tel.: 07762/808-203
Hier geht’s zu den Unterlagen:
